Plurifamiliar

Vilanova i la Geltrú · Barcelona

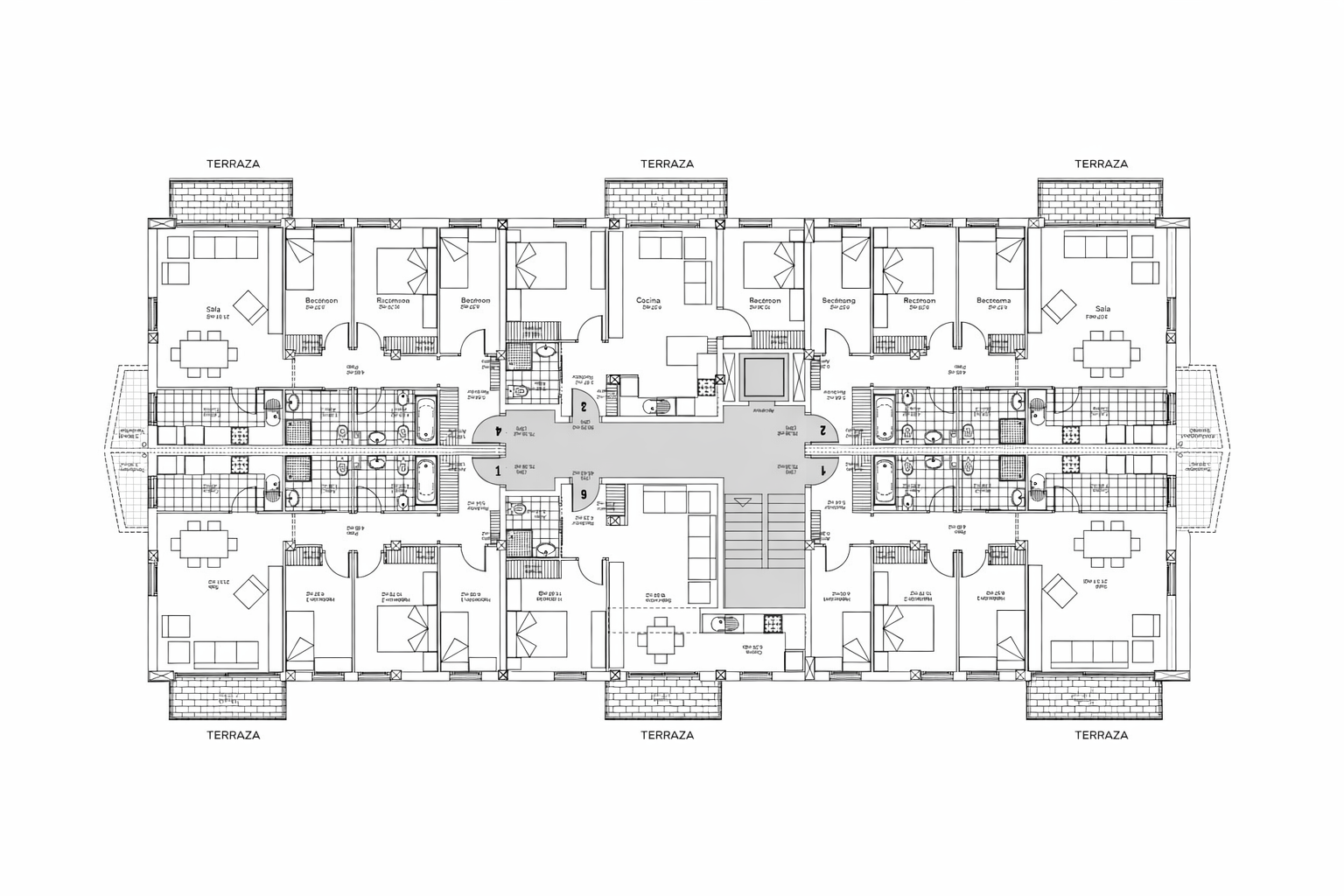
Este edificio residencial de tres plantas alberga 24 viviendas y presenta una arquitectura contemporánea de líneas limpias y volúmenes equilibrados, pensada para integrarse con naturalidad en su entorno urbano.
La composición de fachada combina tonos claros con detalles en contraste y balcones volados que aportan profundidad, dinamismo y una relación constante entre interior y exterior.
Las viviendas se organizan alrededor de un núcleo central de comunicaciones que optimiza los recorridos y garantiza privacidad. Los espacios interiores priorizan la luz natural y la funcionalidad, con zonas de día abiertas que conectan con terrazas y amplían la percepción de amplitud. La distribución clara entre áreas de día y de noche favorece el confort cotidiano.
El conjunto apuesta por materiales duraderos, eficiencia espacial y una arquitectura honesta donde forma y función van de la mano. El resultado es una propuesta residencial actual, luminosa y confortable.