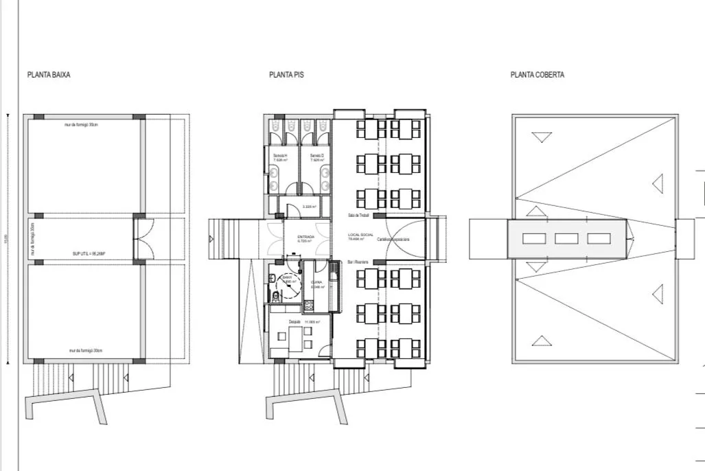
Local Social Can Dori – Canyelles

Gimnasio Municipal Canyelles
Gimnasio Municipal Canyelles
septiembre 8, 2025
Coworking Canyelles
Coworking Canyelles
septiembre 9, 2025