Plurifamiliar

Vilanova i la Geltrú · Barcelona

Diseñamos un edificio de imagen contemporánea y cuidada, capaz de integrarse en la calle sin renunciar a una identidad propia. El volumen central enmarca las terrazas y aporta profundidad a la fachada, generando sombra, protección y espacios exteriores amplios que se disfrutan como una estancia más de la vivienda.
En planta baja, abrimos el edificio hacia la calle y retranqueamos el acceso para crear un umbral más amable y confortable a escala peatonal.
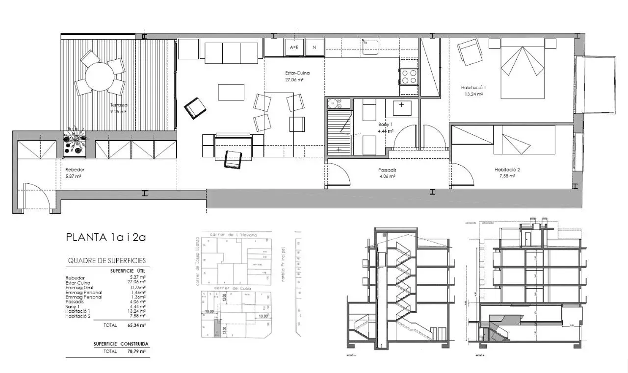
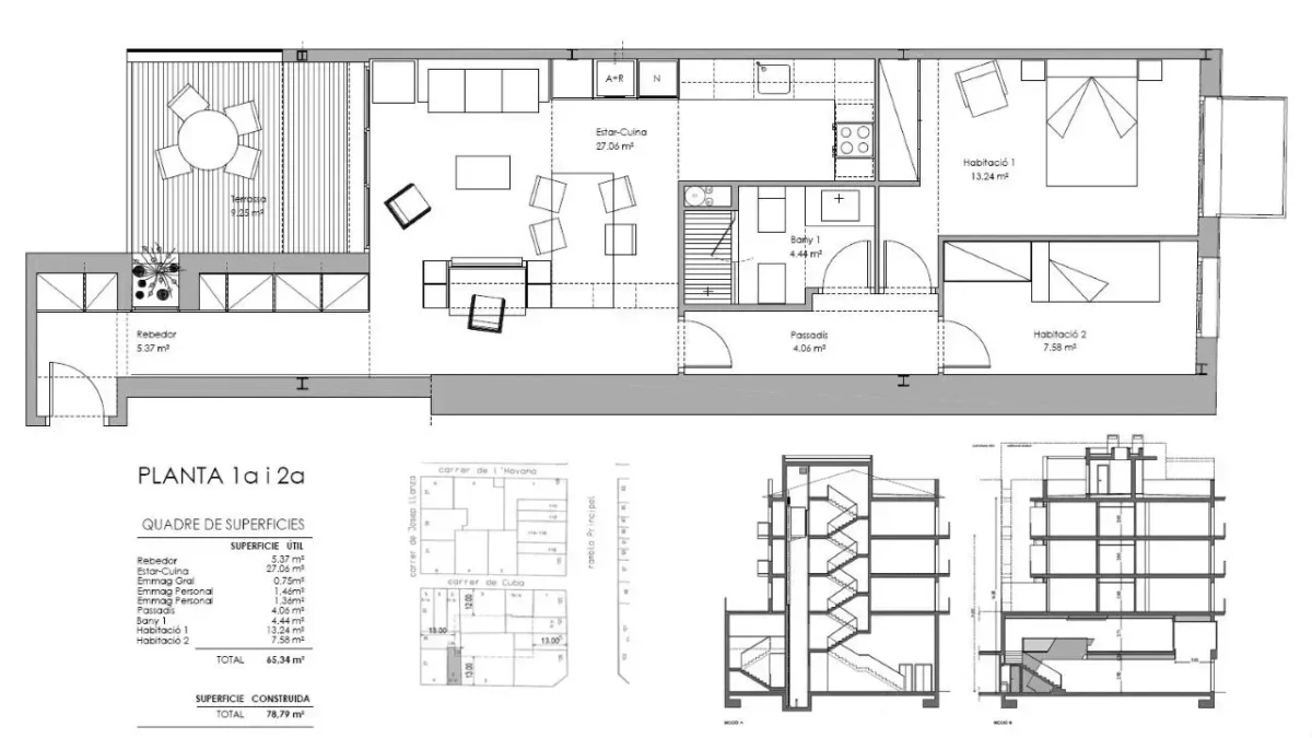
Planteamos las viviendas pensadas para el confort y la vida diaria. La zona de día es un espacio amplio, luminoso y continuo donde salón, comedor y cocina se relacionan directamente con la terraza, ampliando la vivienda hacia el exterior.
Los dormitorios se sitúan en una zona más tranquila y privada, favoreciendo el descanso. La distribución es clara y eficiente, lo que nos permite ofrecer estancias bien proporcionadas, funcionales y agradables para vivir.