Coworking Canyelles

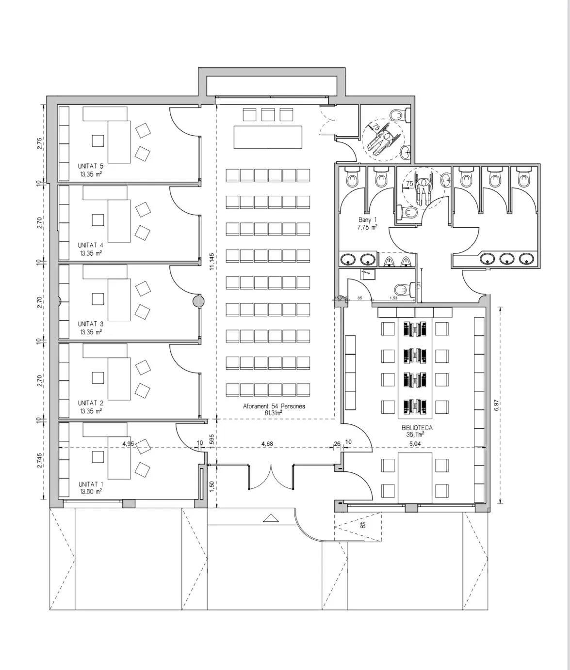
Local Social Can Dori - Canyelles
Local Social Can Dori – Canyelles
septiembre 8, 2025
Guarderia Municipal Canyelles
Guarderia Municipal Canyelles
septiembre 9, 2025