bap arquitectes
bap arquitectes
el estudio
nuestros servicios
proyectos
obra privada
obra publica
contacto
✕
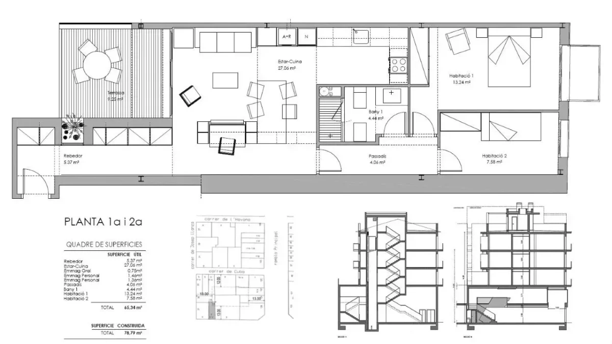
Anteproyecto edificio plurifamiliar – Canyelles
Coworking Vilanova i la Geltrú
agosto 12, 2025
Exhibition Office in a smart box
agosto 12, 2025
Show all
Published by
admin
at
agosto 12, 2025
Categories
Obra privada
Date
agosto 12, 2025
Share
0